Kauno r. sav., Tirkiliškių k., Artūro Sakalausko g., mūrinis sublokuotas namas

IŠSKIRTINIO DIZAINO A++ KLASĖS NAMAS NARSIEČIUOSE SU ITIN AUKŠTOMIS LUBOMIS IR DIDELIAIS VITRININIAIS LANGAIS!

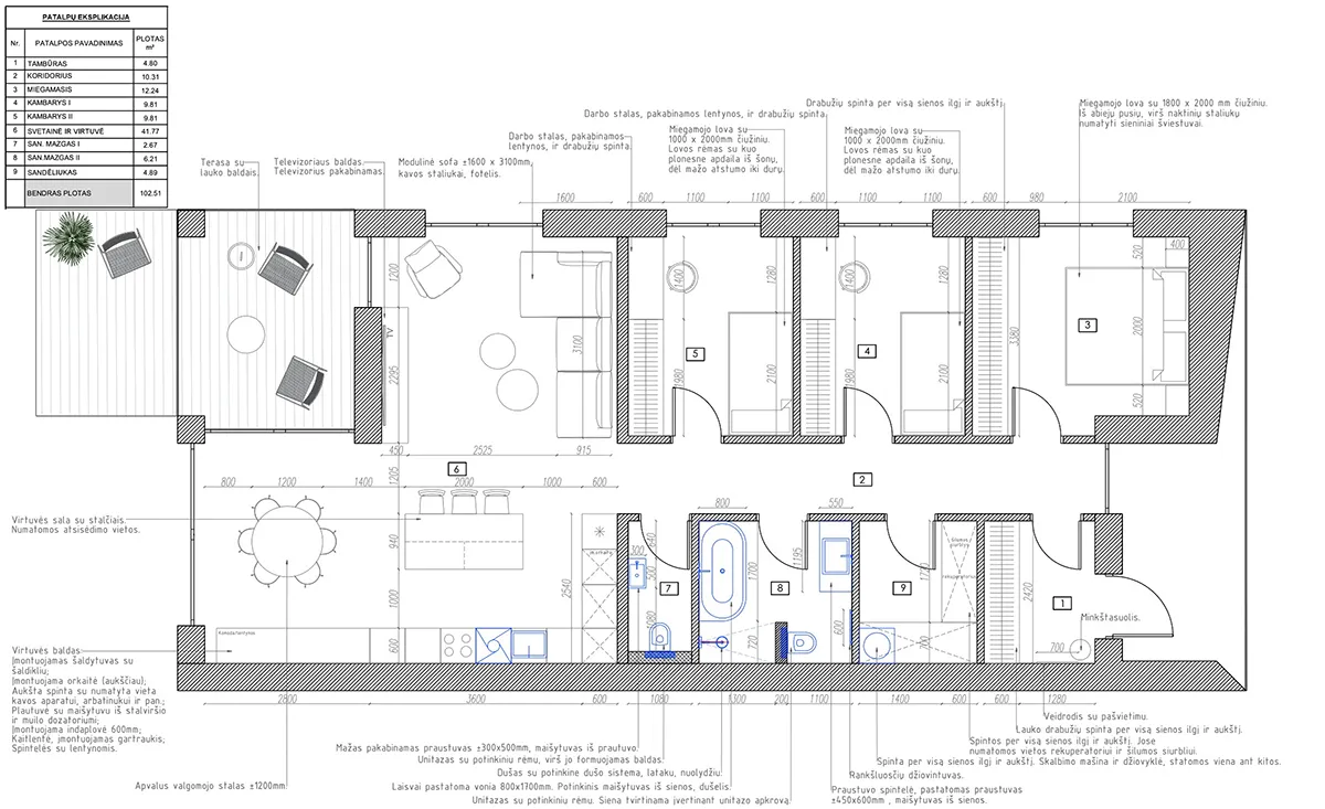
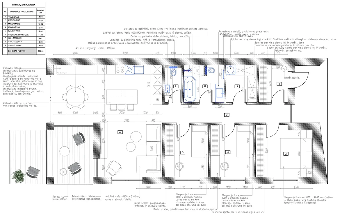
Parduodamas itin šiuolaikiškai ir kokybiškai statomas 102,5 m² namas Narsiečiai A. Sakalausko g. 39, Kauno r.

Namo išskirtinumas rinkoje – ypatingai aukštos lubos (net 4,5m ir 5,5m), dideli vitrininiai langai bei neeiliniai fasado architektūriniai sprendimai. Namas suplanuotas taip, kad atitiktų kasdienius šeimos poreikius ir leistų mėgautis didelėmis erdvėmis.

PAGRINDINIAI PRIVALUMAI:
• 102,5 m² gyvenamo ploto, funkcionalus išplanavimas
• Erdvi 41,77 m² svetainė su virtuve
• 3 miegamieji kambariai
• 2 sanitariniai mazgai

SKLYPAS IR KIEMAS:
• 4,75 aro sklypas
• Įrengta medinė terasa su pastoge
• Kiemas išklotas trinkelėmis
• Aplink namą – trinkelių nuogrinda
• Dvi parkavimo vietos
• Atskiri įvažiavimai
• Sklypas išlygintas ir aptvertas tvora
• Įrengtas drenažas aplink namą

KOKYBĖ IR ENERGETIKA:
• A++ energetinė klasė
• Modernus išskirtinai suformuotas fasadas, klinkerio su struktūriniu tinku
• Aliuminės įėjimo durys
• Langai išnešti į apšiltinimo sluoksnį su termo profiliais
• Išvedžiota rekuperacinė sistema
• Išvedžioti variniai vamzdeliai šaldymo/kondicionavimo sistemai
• Įrengti neužšąlantys lauko vandens kranai

INŽINERINĖS SISTEMOS:
• Elektra – 11 kW
• Elektros tinklai išvedžioti į taškus pagal projektą
• Išvedžiotas grindinis šildymas
• Miesto vandentiekis bei kanalizacija
• Išvedžioti silpnų srovių tinklai (Signalizacijai, kameroms, internetui)

PAPILDOMA INFORMACIJA:
• Baigtumas – 85 %
• Vidaus sienos – tinkuotos
• Vidinės pertvaros iš dvigubo gipso, viduje Knauf vata garso izoliacijai
• Atliktas sandarumo testas

VIETA:
• Narsiečiai
• Netoliese švietimo įstaigos
• Nauja ir tvarkinga kaimynystė

Parduoda statytojas, suteikiamos garantijos.
Namas bus baigtas 2026 m. 2 ketv.

(ŠIUO METU STATOMI 2 TOKIE DVIBUČIAI NAMAI)

Domina projektas?