Mūrinis sublokuotas namas Kauno r. sav., Jonučių k., Sodų g.

MODERNUS A++ KLASĖS NAMAS ŠEIMAI SU TERASA IR SANDĖLIUKU IR 6,5A DYDŽIO SKLYPU.

Visiškai naujas, šiuolaikiškas ir kokybiškai pastatytas 116,22 m² namas Sodų g. 127, Jonučiuose, Kauno r. Visai šalia Narsiečiai. Namas suplanuotas taip, kad atitiktų kasdienius šeimos poreikius ir užtikrintų maksimalų komfortą.

PAGRINDINIAI PRIVALUMAI:

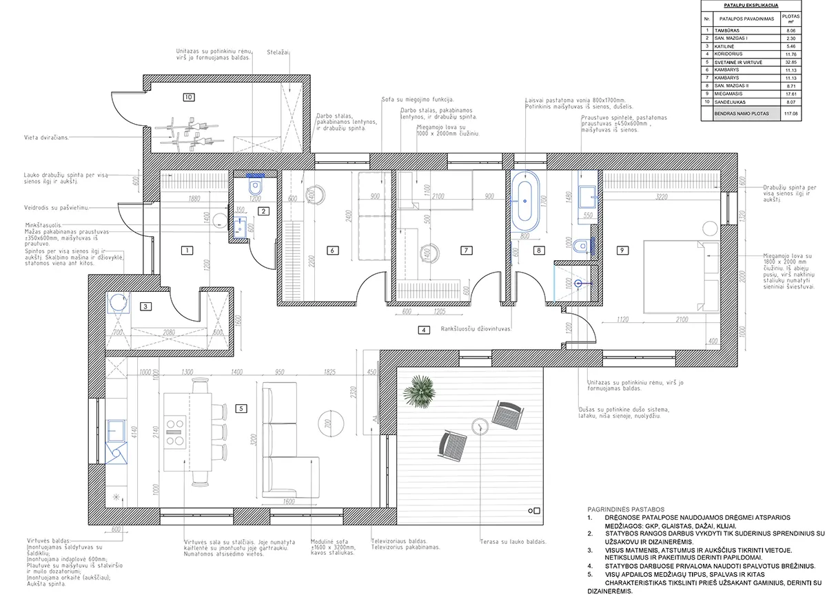
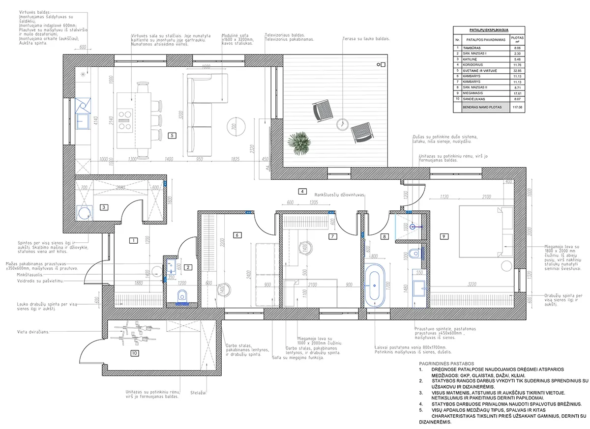
  • 108 m² gyvenamo ploto, funkcionalus išplanavimas
  • Erdvi 37,86 m² svetainė su virtuve – šviesi ir jauki
  • 3 miegamieji kambariai
  • 2 sanitariniai mazgai
  • 8,07 m² lauko sandėliukas
  • Namas blokuotas per sandėliukus – daugiau privatumo

SKLYPAS IR KIEMAS:

  • Net 6,5 aro dydžio sklypas
  • Įrengta medinė terasa su stogine
  • Kiemas išklotas trinkelėmis
  • Aplink namą – trinkelių nuogrinda
  • Daugiau nei dvi parkavimo vietos
  • Sklypas aptvertas modernia žaliuzine tvora
  • Įrengtas drenažas
  • Atskiri įvažiavimai abiems namams

KOKYBĖ IR ENERGETIKA:

  • A++ energetinė klasė
  • Modernus degintos medienos fasadas su struktūriniu tinku
  • Aliuminės įėjimo durys
  • Langai išnešti į apšiltinimo sluoksnį su termo profiliais
  • Išvedžiota rekuperacinė sistema
  • Išvedžioti variniai vamzdeliai šaldymo/kondicionavimo sistemai
  • Įrengti neužšąlantys lauko vandens kranai

IŠPLANAVIMAS:

  • Svetainė su virtuve – 37,86 m²
  • Pagrindinis miegamasis – 17,39 m²
  • Miegamieji / darbo kambariai – po 11,07 m²
  • Vonios kambarys – 8,64 m²
  • San. mazgas – 2,26 m²
  • Katilinė / skalbykla – 5,41 m²
  • Holas – 8,5 m²
  • Koridorius – 5,95 m²
  • Lauko sandėliukas – 8,07 m²
    BENDRAS PLOTAS – 116,22 m²

INŽINERINĖS SISTEMOS:

  • Elektra – 11 kW
  • Išvedžiotas grindinis šildymas
  • Viso miesto komunikacijos (vandentiekis, kanalizacija, lietaus nuotekos)
  • Išvedžiota signalizacija ir interneto kabeliai

PAPILDOMA INFORMACIJA:

  • Baigtumas – 80-85 %
  • Vidaus sienos – tinkuotos
  • Vidinės pertvaros iš dvigubo gipso, viduje Knauf vata garso izoliacijai
  • Bus atliktas sandarumo testas

VIETA: Sparčiai besivystantis Kauno rajonas.

  • Netoliese švietimo įstaigos
  • Nauja ir tvarkinga kaimynystė

Domina projektas?